1. Giới thiệu chung
Công tắc dòng chảy TFS-606F nhãn hiệu TLSH-France là thiết bị chuyên dụng để phát hiện lưu lượng dòng nước trong đường ống, từ đó kích hoạt tín hiệu điều khiển hoặc cảnh báo. Thiết bị đóng vai trò quan trọng trong các hệ thống bơm nước, phòng cháy chữa cháy, nơi cần xác nhận lưu lượng nước đang được cấp thực tế đến các đầu phun hoặc thiết bị tiêu thụ.
Khi dòng nước đạt đến tốc độ tối thiểu cần thiết, lưỡi công tắc bên trong sẽ di chuyển và đóng mạch điện, kích hoạt hệ thống báo động hoặc vận hành thiết bị liên quan (như chuông báo cháy, điều khiển máy bơm, mở van,...).

2. Ứng dụng
Công tắc dòng chảy TFS-606F thường được lắp đặt trong các hệ thống:
- Cấp nước công nghiệp và dân dụng.
- Hệ thống chữa cháy sprinkler tự động.
- Các trạm bơm PCCC.
- Hệ thống điều khiển tự động có giám sát lưu lượng nước.
- Các tuyến ống cần kiểm soát dòng chảy để kích hoạt thiết bị điện.
3. Nguyên lý hoạt động
- Khi không có nước chảy hoặc dòng chảy dưới mức cài đặt, lưỡi công tắc (blade) sẽ giữ nguyên vị trí và mạch điện không được kích hoạt.
- Khi dòng nước chảy qua đủ mạnh, lực dòng chảy tác động lên lưỡi công tắc, khiến lưỡi di chuyển → đóng công tắc vi mô (micro switch) → truyền tín hiệu đến hệ thống điều khiển.
- Khi dòng nước dừng, công tắc sẽ trở về trạng thái ban đầu nhờ lực hồi cơ học.
4. Thông số kỹ thuật
Thông số |
Giá trị |
Kích cỡ danh định (DN) |
DN80 – DN200 |
Áp suất làm việc |
16 bar |
Nhiệt độ làm việc |
0°C đến +45°C |
Lưu chất sử dụng |
Nước (Water) |
Điện áp micro switch |
DC 24V / 1A |
Lắp đặt |
Trực tiếp lên đường ống |
Tín hiệu điều khiển |
Công tắc điện dạng tiếp điểm on/off |
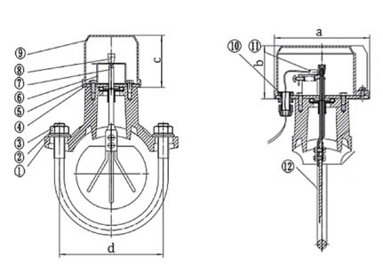
5. Cấu tạo vật liệu

STT |
Bộ phận |
Vật liệu |
1 |
Thân van (Body) |
Gang cầu (Ductile Iron) |
3 |
Vòng đệm (O-ring) |
Thép carbon |
4 |
Tấm chắn (Plate) |
Thép carbon |
8 |
Công tắc (Switch) |
Thép carbon |
9 |
Nắp bảo vệ (Cover) |
Nhôm (Aluminum) |
11 |
Micro Switch |
DC 24V / 1A |
12 |
Lưỡi công tắc (Blade) |
Nhựa PVC |
6. Ưu điểm nổi bật
- Phát hiện lưu lượng tức thời, phản hồi nhanh và chính xác.
- Tích hợp công tắc điện tin cậy, phù hợp kết nối với nhiều hệ thống điều khiển.
- Chịu áp lực cao, nhiệt độ môi trường tiêu chuẩn.
- Vật liệu chắc chắn, chống ăn mòn, độ bền cao.
- Thiết kế nhỏ gọn, dễ dàng lắp đặt và bảo trì.