1. Giới thiệu chung
Van xả áp thủy lực (Van an toàn thủy lực) TPR-605F nhãn hiệu TLSH-France là loại van điều khiển bằng áp suất, được thiết kế để bảo vệ hệ thống đường ống và thiết bị khỏi hiện tượng tăng áp đột ngột. Van hoạt động theo nguyên lý điều khiển bằng pilot, cho phép van mở nhanh khi áp suất vượt ngưỡng cài đặt và đóng chậm để ngăn chặn hiện tượng búa nước (water hammer). Đây là giải pháp tối ưu giúp duy trì áp suất ổn định đầu vào, tăng tuổi thọ cho hệ thống và đảm bảo an toàn vận hành.
Van được thiết kế với độ chính xác cao, hoạt động tự động hoàn toàn, dễ dàng lắp đặt và vận hành trong nhiều hệ thống thủy lực và cấp nước.

2. Ứng dụng
Van an toàn thủy lực TPR-605F phù hợp với nhiều lĩnh vực như:
- Hệ thống cấp nước sinh hoạt và công nghiệp.
- Hệ thống phòng cháy chữa cháy (PCCC).
- Hệ thống tưới tiêu thủy lợi.
- Các trạm bơm có nguy cơ tăng áp đột ngột khi dừng bơm.
- Các hệ thống cần duy trì áp suất không đổi để bảo vệ thiết bị đầu cuối.
3. Nguyên lý hoạt động
Van an toàn thủy lực TPR-605F hoạt động dựa trên cơ chế điều khiển bằng pilot thủy lực:
- Khi áp suất trong đường ống vượt quá giá trị cài đặt, tín hiệu áp lực sẽ truyền đến bộ pilot, kích hoạt quá trình mở van.
- Van chính sẽ mở nhanh để xả bớt áp ra khỏi hệ thống, làm giảm áp lực tức thời.
- Khi áp suất trở về mức an toàn, van sẽ đóng lại từ từ, giúp ổn định áp lực và tránh sốc áp.
- Việc đóng chậm này đặc biệt hiệu quả trong việc giảm thiểu hiện tượng búa nước và dao động áp suất.
Áp suất cài đặt có thể điều chỉnh dễ dàng thông qua cụm pilot, phù hợp với nhiều yêu cầu vận hành khác nhau.
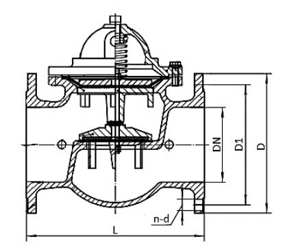
4. Thông số kỹ thuật
Thông số |
Giá trị |
Kích cỡ danh định (DN) |
DN50 – DN250 |
Áp suất làm việc |
16 bar (tùy chọn lên đến 25 bar) |
Nhiệt độ làm việc |
+80°C |
Tiêu chuẩn mặt bích |
EN 1092-2 |
Dải áp suất điều chỉnh (pilot) |
Tiêu chuẩn: 1.4 – 12 bar
Tùy chọn: 0.1 – 5 bar hoặc 7 – 17 bar |
Lưu chất sử dụng |
Nước (clean water) |
Sơn phủ |
Epoxy sơn tĩnh điện chống ăn mòn |
5. Vật liệu chế tạo

Bộ phận |
Vật liệu |
Thân van (Body) |
Gang cầu (Ductile Iron) |
Nắp van (Bonnet) |
Gang cầu |
Trục van (Stem) |
Thép không gỉ (Stainless Steel) |
Lò xo (Spring) |
Thép không gỉ |
Màng chắn (Diaphragm) |
Cao su NBR |
Đĩa van (Disc) |
Gang xám |
6. Ưu điểm nổi bật
- Hoạt động tự động, ổn định và tin cậy.
- Mở nhanh, đóng chậm giúp bảo vệ hệ thống tối ưu.
- Điều chỉnh áp suất dễ dàng, linh hoạt theo nhu cầu.
- Cấu trúc chắc chắn, vật liệu bền bỉ, chống ăn mòn tốt.
- Dễ dàng lắp đặt, bảo trì và thay thế linh kiện.